Commerce Building Elevation and Column Layout CAD File
Description
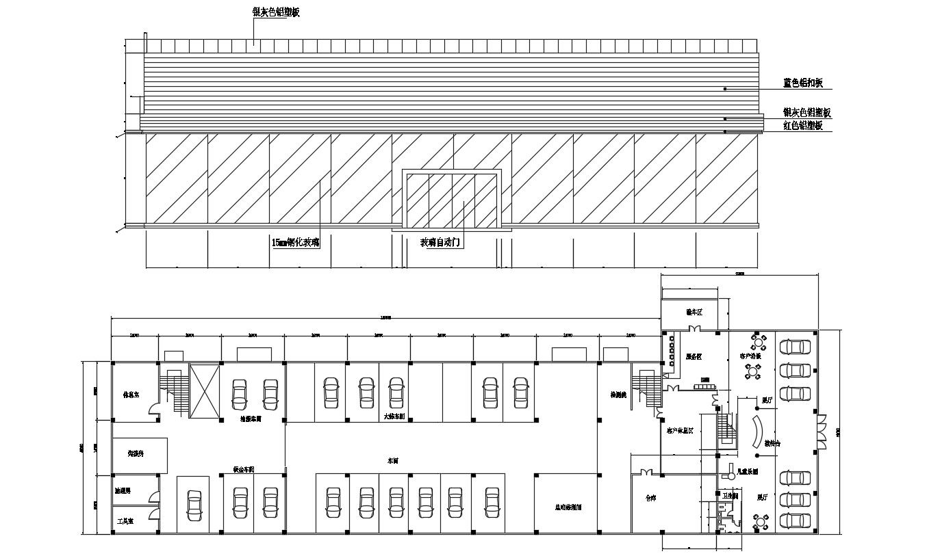
Commercial building column layout plan design along with parking space area design, dimension set, building front elevation design, and various other amenities details download CAD drawing.

Uploaded by:
akansha
ghatge

