Commercial Building Electrical Layout Plan CAD File
Description
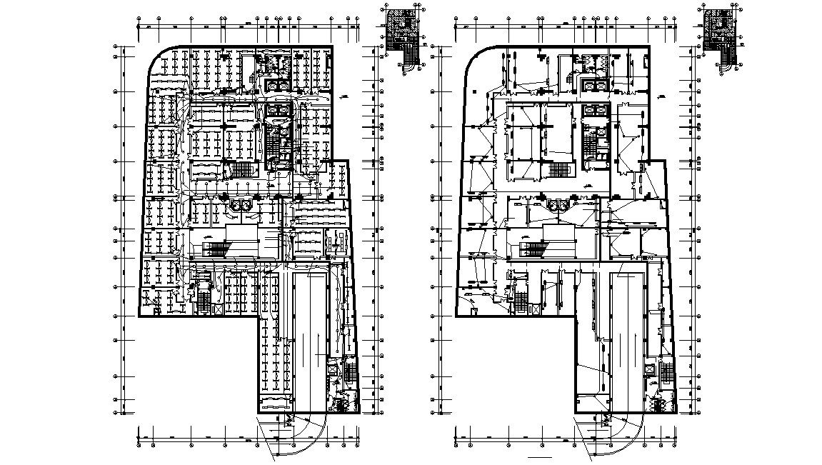
2d CAD drawing details of building electrical installation layout plan that shows electrical wiring details along with earthing wire, centerline, dimension set, fuse circuits blocks, and various other electrical blocks detailing download file for the detailed work plan.

Uploaded by:
akansha
ghatge

