Commercial Building Car Parking Space Design Layout Plan
Description
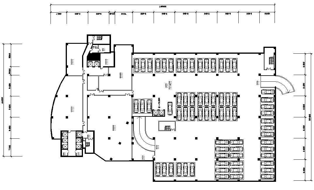
Car parking lot design for commercial building hub that shows 90-degree parking system along with dimension set, ramp design, building column layout plan, and various other units details download

Uploaded by:
akansha
ghatge

