Commercial Building Construction Plan AutoCAD File
Description
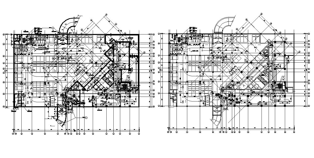
Commercial building layout Plan that shows column and wall structure design for building along with building construction centerline details, dimension working set, building floor level, staircase, elevators, and various other building amenities details download a CAD file.

Uploaded by:
akansha
ghatge

