Download Parking Lot System Design CAD Drawing
Description
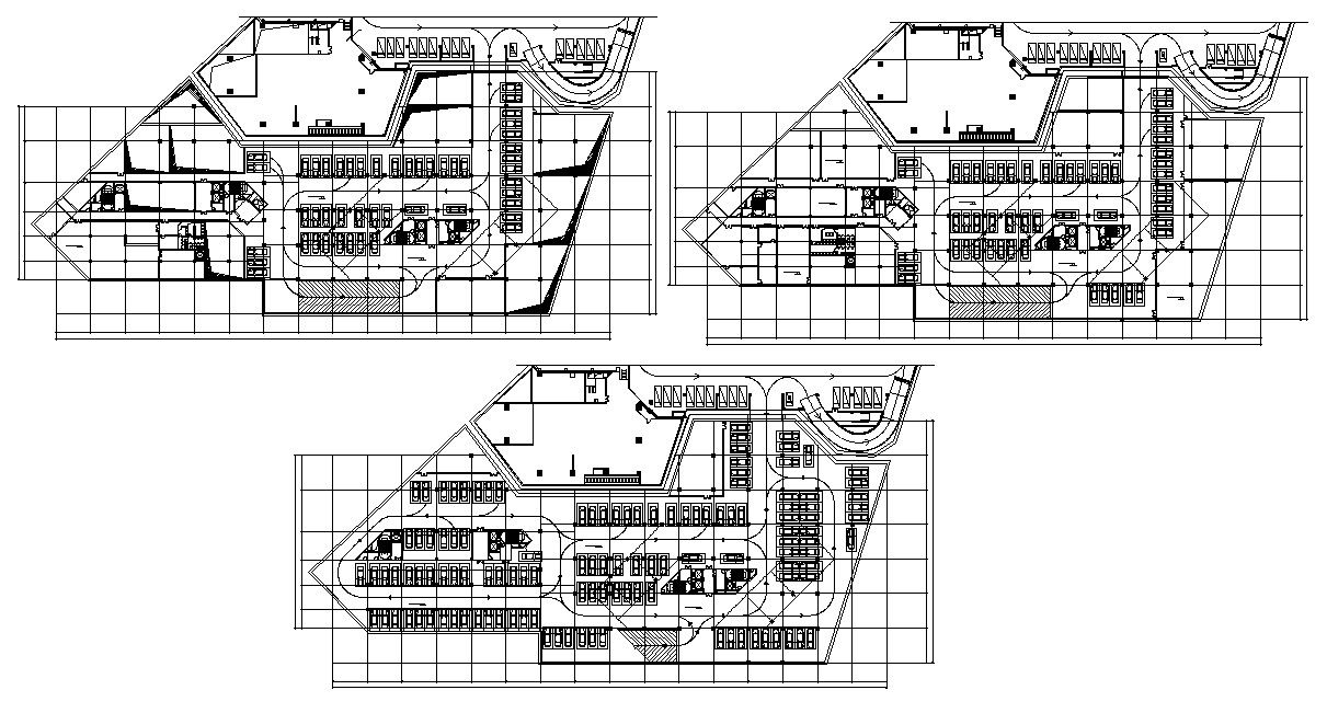
Commercial Building Basement Parking lot design plan that shows a 90-degree car parking system design along with entry-exit way ramp, staircase, elevators, parking area markings, parking space area, and various other amenities details download CAD drawing for the detailed presented plan.

Uploaded by:
akansha
ghatge
