Shopping Mall Building Layout Plan Design
Description
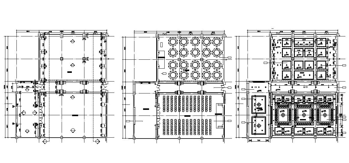
CAD drawing details of shopping design plan that shows restaurant area design, shop, store, multi-purpose department room, theater room, dimension set, foyer design, Function Room, and building various other amenities details download file for the presented plan.

Uploaded by:
akansha
ghatge

