Apartment Section and Bathroom Layout Design CAD file
Description
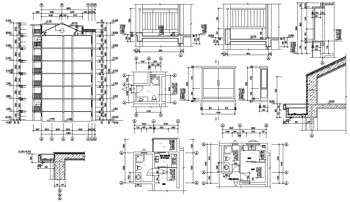
Apartment section design along with railing design, kitchen and bathroom layout plan, dimension set, centerline, kitchen blocks, sanitary blocks, and various other un its details download a CAD file.

Uploaded by:
akansha
ghatge

