LOGIN
HOME
CATEGORIES
UPLOAD FILE
PRICING
HOUSE PLAN
ABOUT US
CONTACT US
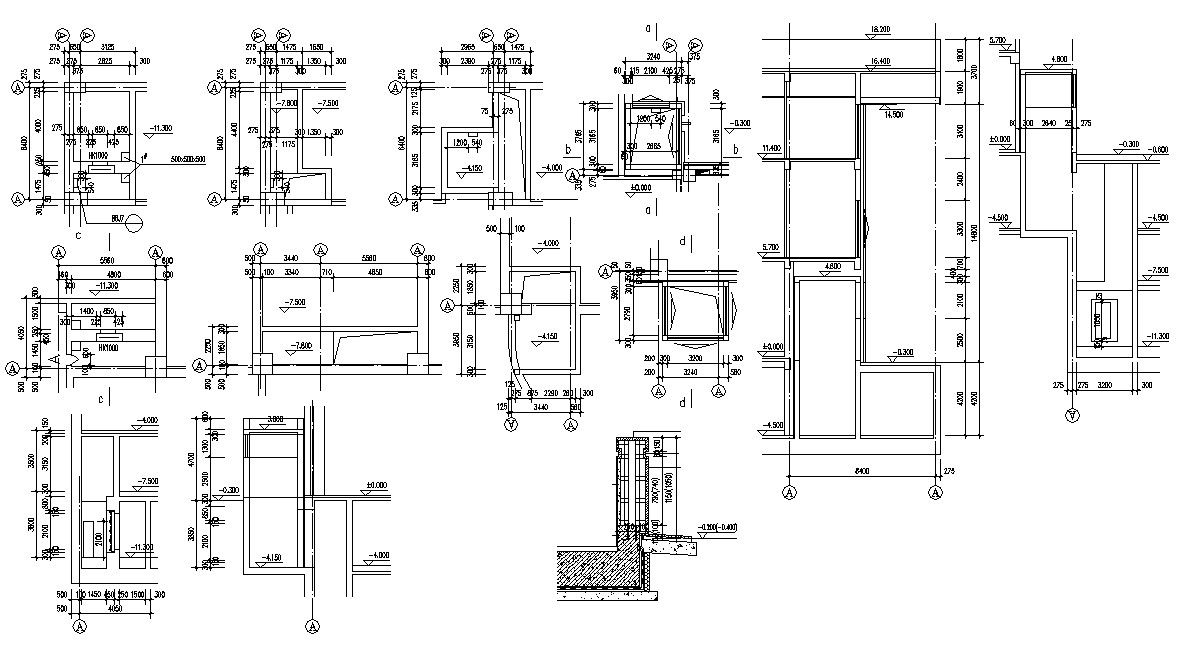
Wall Design layout Plan CAD Drawing
Home
Categories
Dwg Cad Blocks
Wall And Railings
Wall Design layout Plan CAD Drawing
Uploaded by:
akansha
ghatge
View Profile
View Profile
Description
CAD drawing details of wall layout plan design along with centerline, dimension working set, and various other units details download file for free.
File Type:
DWG
File Size:
726 KB
Category::
Dwg Cad Blocks
Sub Category::
Wall And Railings
type:
Free
Uploaded by:
akansha
ghatge
View Profile
Download
Add to libary
find Latest
Related
Files