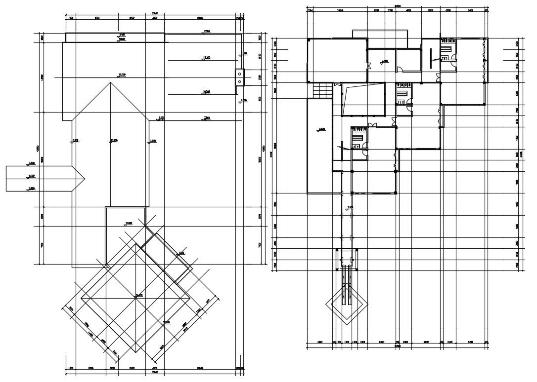
Commerce Building Terrace and Layout Plan CAD File
Description
Building layout Design plan that shows dimension working set, roof terrace plan, staircase, sanitary toilet, building floor level, and building various other amenities details download CAD Drawing

Uploaded by:
akansha
ghatge

