Commercial Building Design Floor Plan AutoCAD File
Description
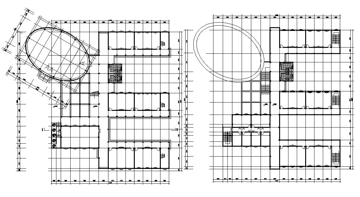
Commercial building construction layout plan that shows dimension working set, column layout, building floor level, staircase, sanitary public toilet, and various other units details download AutoCAD Drawing a detailed presented plan.

Uploaded by:
akansha
ghatge
