Apartment Design Layout Plan CAD Drawing Download
Description
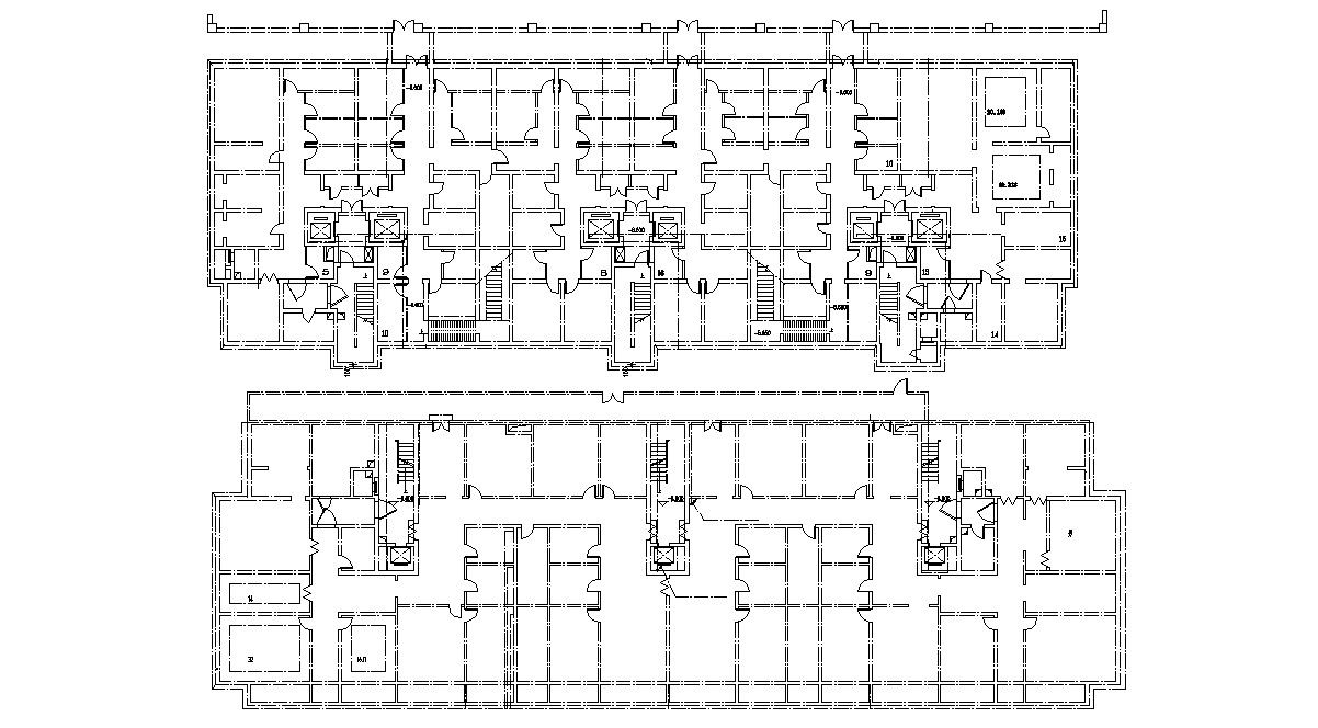
Residential housing apartment design layout plan that shows building staircase, elevators, unit house, and various other details download CAD file for free.

Uploaded by:
akansha
ghatge

Uploaded by:
ghatge