Pile Footing Reinforcement Design AutoCAD File
Description
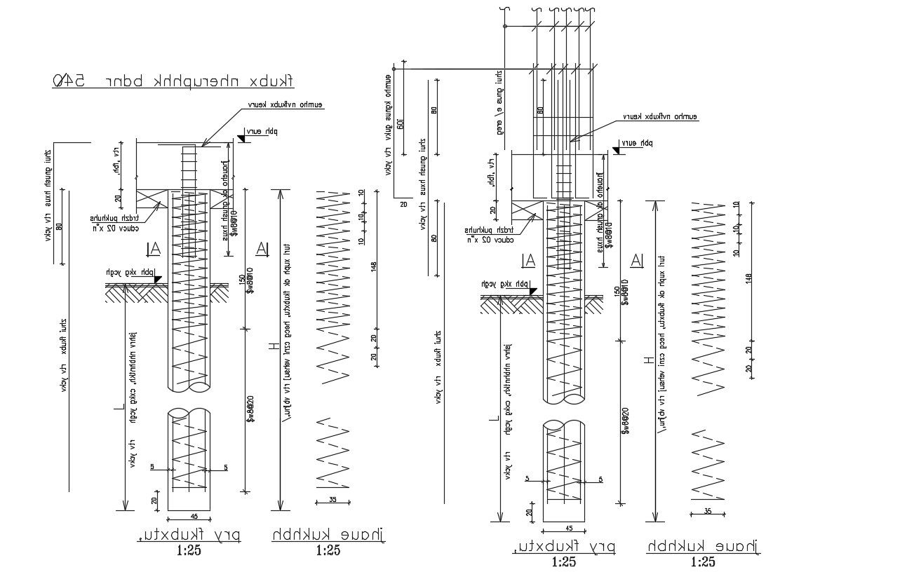
Pile Foundation reinforcement curtailment design that shows reinforcement bars details in tension and compression zone along with main and distribution hook up and bent up bars details and various other RCC structural units details download CAD file for detailed steelwork design.

Uploaded by:
akansha
ghatge

