Moving Bed Bio Film Reactor (MBBR) Design CAD File
Description
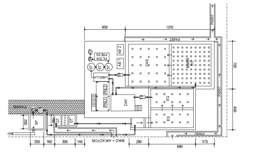
2d CAD drawing details of pond water treatment Moving bed biofilm reactor (MBBR) process design plan that shows MBBR aeration activated sludge tank details along with the pipe, dimensions set, and various other plumbing blocks details download AutoCAD file.

Uploaded by:
akansha
ghatge
-Design-CAD-File-Tue-Nov-2019-05-48-57.jpg)
