School Building Design Architecture CAD Plan Download
Description
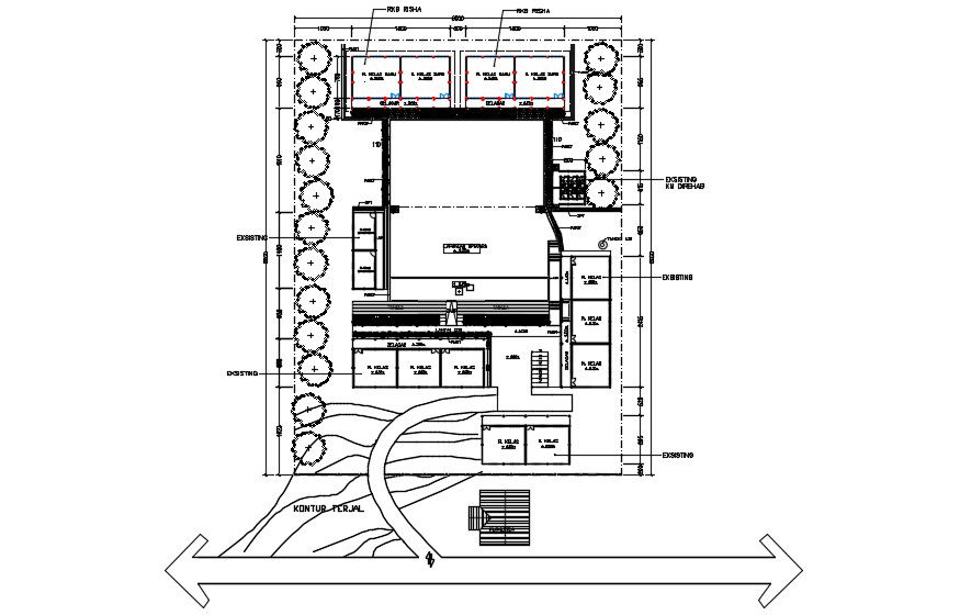
CAD drawing details of school building design architecture plan that shows building accommodation details of the classroom, landscape, ground, staircase, compound wall, road networks and building various other amenities details download AutoCAD file for free.

Uploaded by:
akansha
ghatge

