Commercial Office Building Furniture Layout Plan CAD File
Description
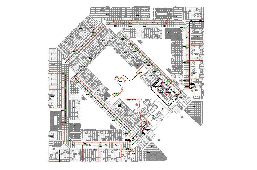
CAD drawing details of office building layout plan that shows building furniture arrangements details along with room and cabins details, corridor passage, manager office, conference room, and various other details download AutoCAD file for free.
File Type:
DWG
File Size:
4 MB
Category::
Interior Design
Sub Category::
Modern Office Interior Design
type:
Gold

Uploaded by:
akansha
ghatge
