Free Download Detailing Of Motor DWG file
Description
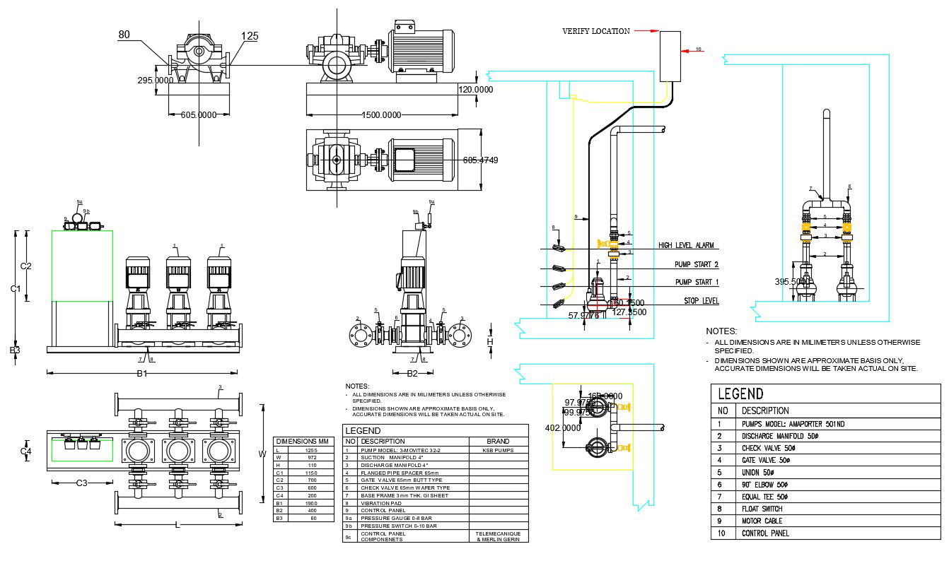
Free Download Detailing Of Motor DWG file; this is the detail of pump, the motor with a section of fixing, legend, dimension detail, and much more detail, this is the CAD file.
Uploaded by:
Rashmi
Solanki

