Water Stop Arrangement At Grid line Design PDF File
Description
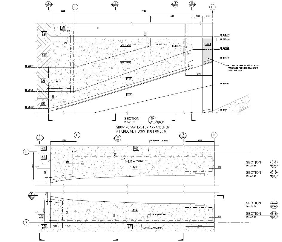
Hydro-Electric Project-Water Stop Arrangement At Gridline 9 construction joint design that shows RCC work details along with dimension set, centerline, section line, leveling, and various other units details download PDF File.

Uploaded by:
akansha
ghatge

