Reinforcement Design Of Structure PDF File Free download
Description
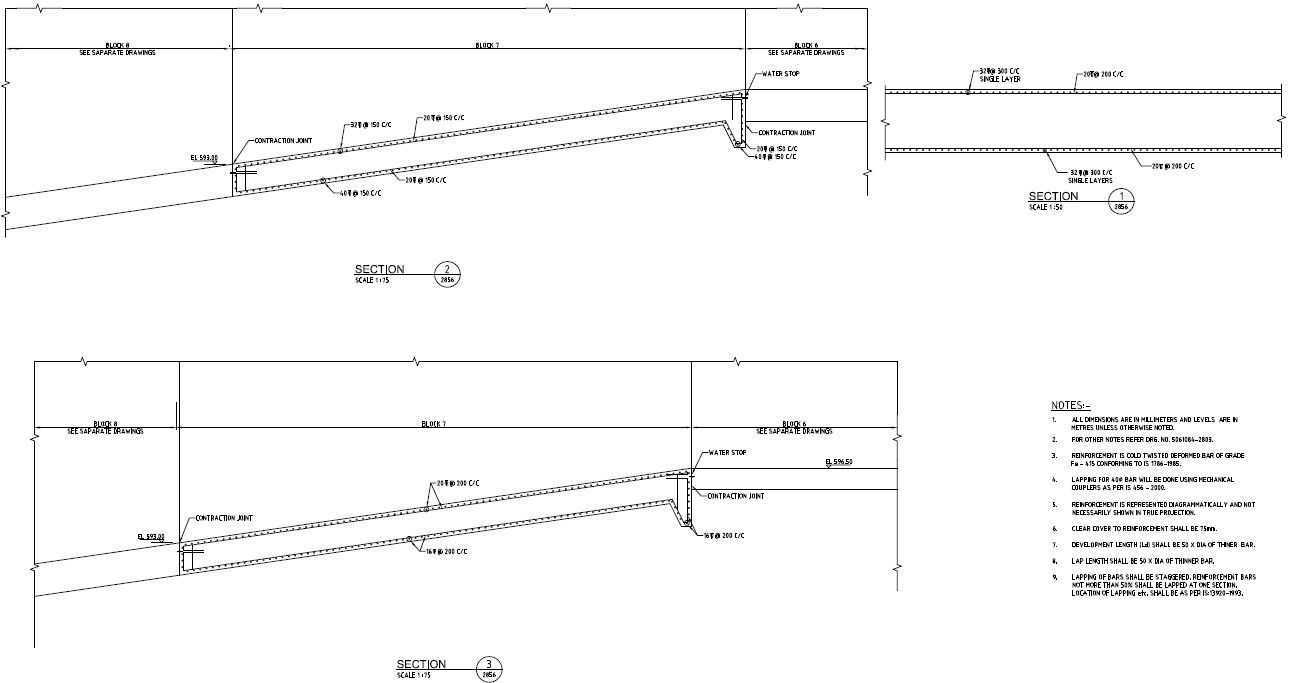
Reinforcement details in structure that shows steel curtailment bars details in tension and compression zone along with main and distribution hook up and bent up bars details. Download PDF File for detailed design of RCC structure.
File Type:
File Size:
467 KB
Category::
Construction
Sub Category::
Concrete And Reinforced Concrete Details
type:
Free

Uploaded by:
akansha
ghatge

