Hydro Electrical Plant Section Design PDF File Download
Description
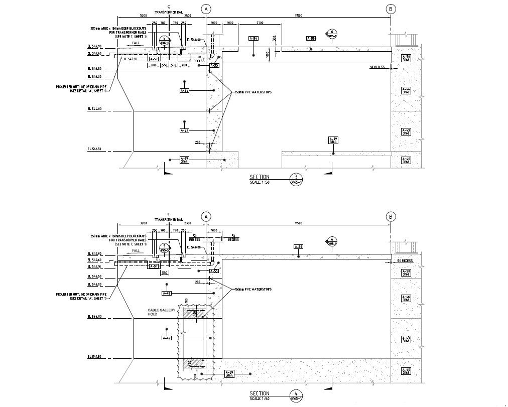
Detail design of hydroelectric layout plant that shows powerhouse design of PVC water stop, dimension working set, transformer rail, cable gallery hold, and various other units details of powerhouse unit download PDF File

Uploaded by:
akansha
ghatge

