Power House Assembly Bay Layout Section Design PDF File
Description
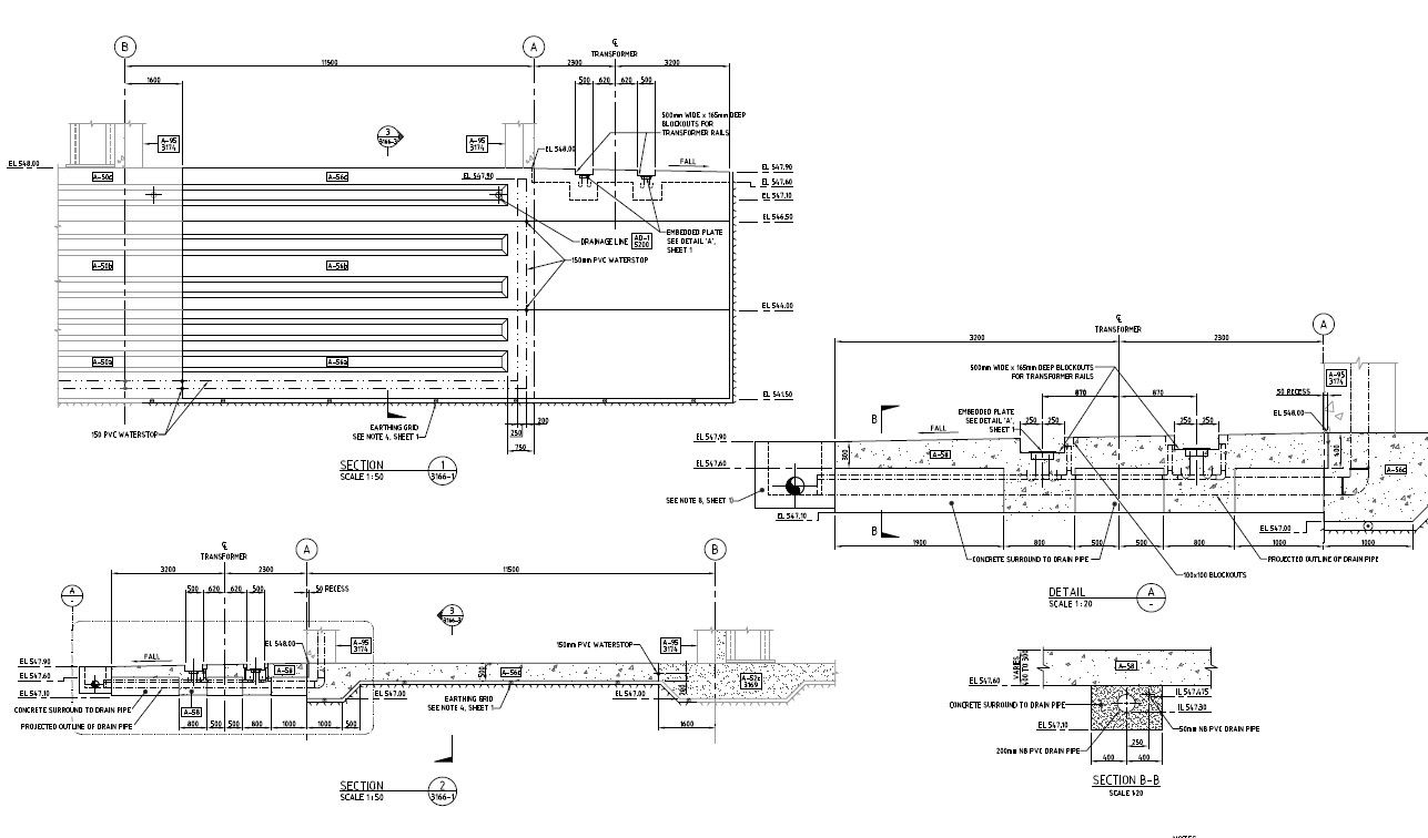
Sectional drawing of hydro electrical powerhouse Assembly Bay layout design that shows dimension working set, centerline, earthing grid, PVC water stop, Drainage line, drain pipe, RCC work, and various other units details download PDF file for the detailed design of powerhouse.

Uploaded by:
akansha
ghatge

