RCC Foundation Layout Plan Design PDF File Download
Description
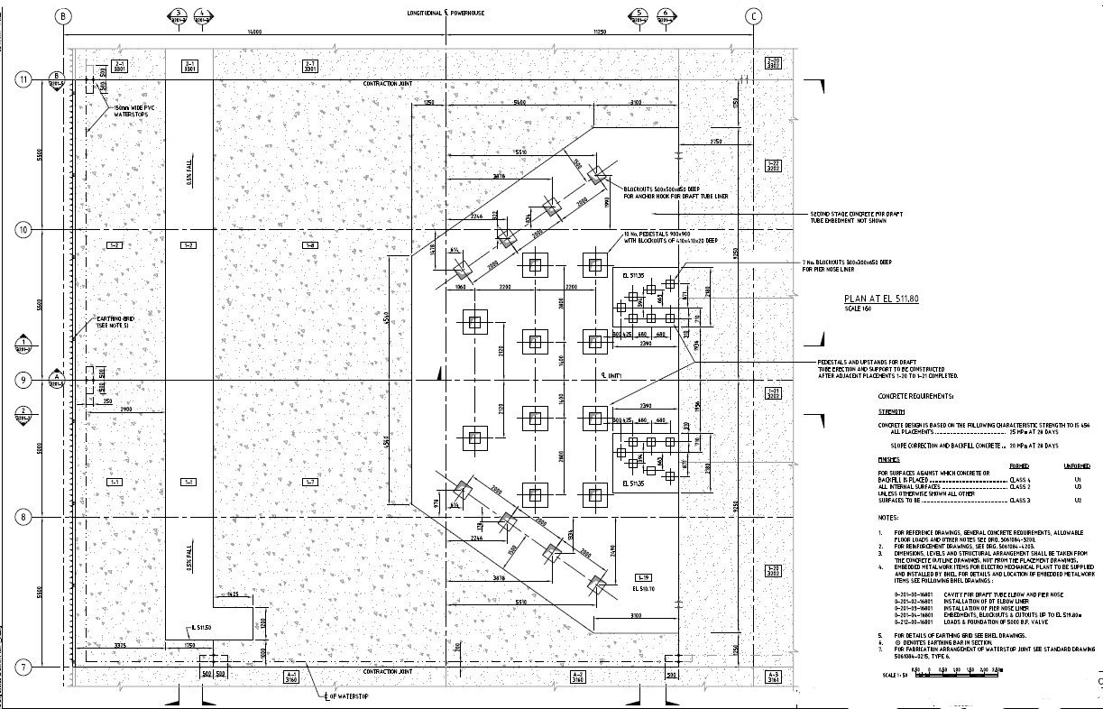
RCC footing design for a hydro-electrical power plant that shows Concrete masonry work details along with foundation spacing, dimension working set, centerline, water stop area, excavation line, specifications, and various other structural blocks details download PDF file for detail design.

Uploaded by:
akansha
ghatge

