Power House Column Structure Design PDF File Download
Description
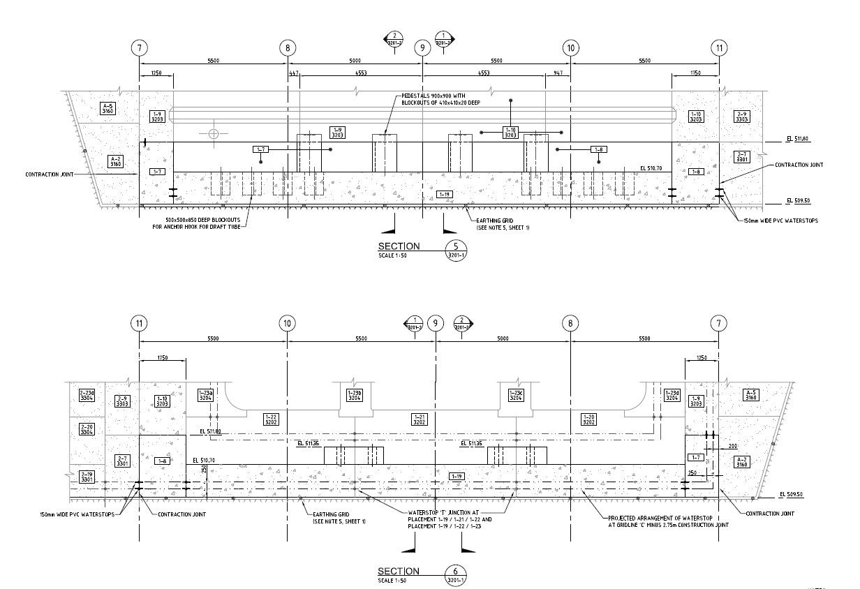
RCC column structure design for the powerhouse that shows column size details along with RCC work, dimension working set, column spacing, Concrete masonry work, water stop junction, earthing grid, drain pipe, PVC water stop pipe, and various other blocks details download the PDF file.

Uploaded by:
akansha
ghatge

