Manhole Sewer Chamber Plan and Section Design AutoCAD Drawing Download
Description
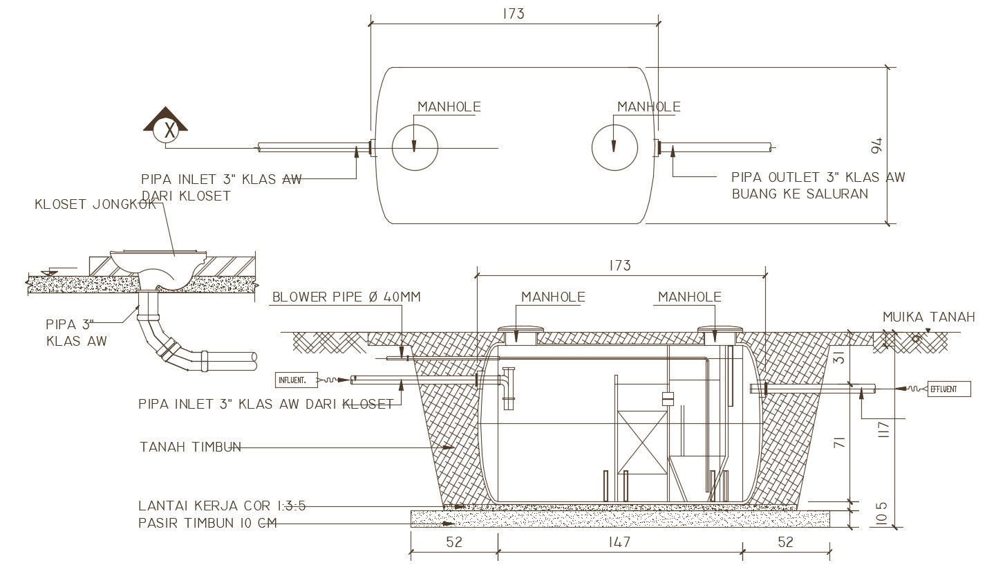
2d CAD drawing details of sewerage chamber design plan along with sewer pipe blocks, inspection chamber size, section line, sunk unit, manhole section, and various other units details download AutoCAD file.

Uploaded by:
akansha
ghatge

