Dormitory Elevation and Layout Plan Design AutoCAD Drawing
Description
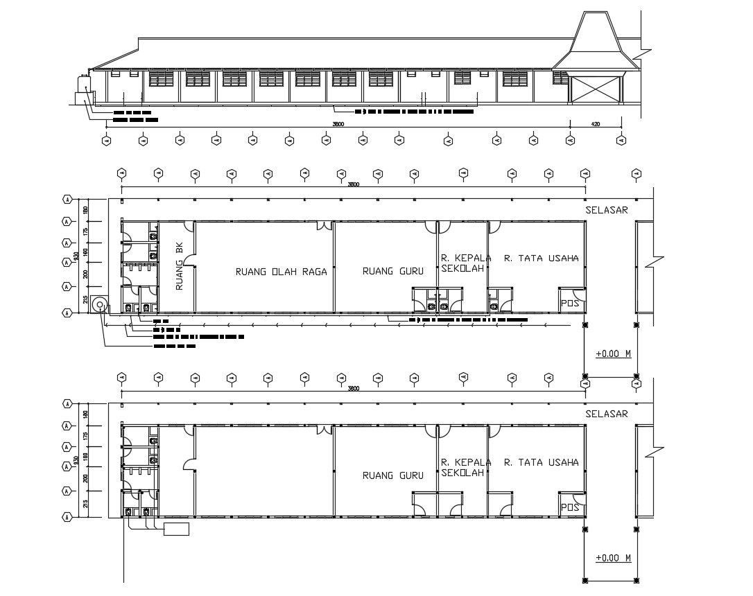
2d CAD drawing details of dormitory building front elevation design along with the working plan, sanitary toilet design, working dimension set, cenetr line, roof design, download AutoCAD file.

Uploaded by:
akansha
ghatge

