LOGIN
HOME
CATEGORIES
UPLOAD FILE
PRICING
HOUSE PLAN
ABOUT US
CONTACT US
simple kitchen design
Home
Categories
Interior Design
Kitchen Interiors
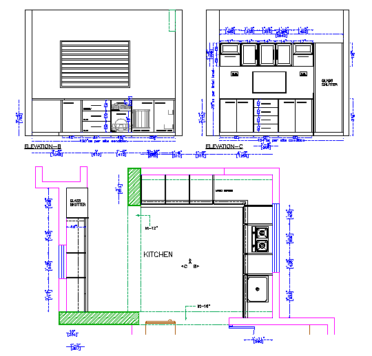
simple kitchen design
Uploaded by:
Harriet
Burrows
View Profile
View Profile
Description
simple kitchen design in all furniture design & all Dimension and Lay-out & elevation design.
File Type:
DWG
File Size:
68 KB
Category::
Interior Design
Sub Category::
Kitchen Interiors
type:
Gold
Uploaded by:
Harriet
Burrows
View Profile
Download
Add to libary
find Latest
Related
Files