Bungalow Furniture Layout and Wiring Plan AutoCAD Drawing Download
Description
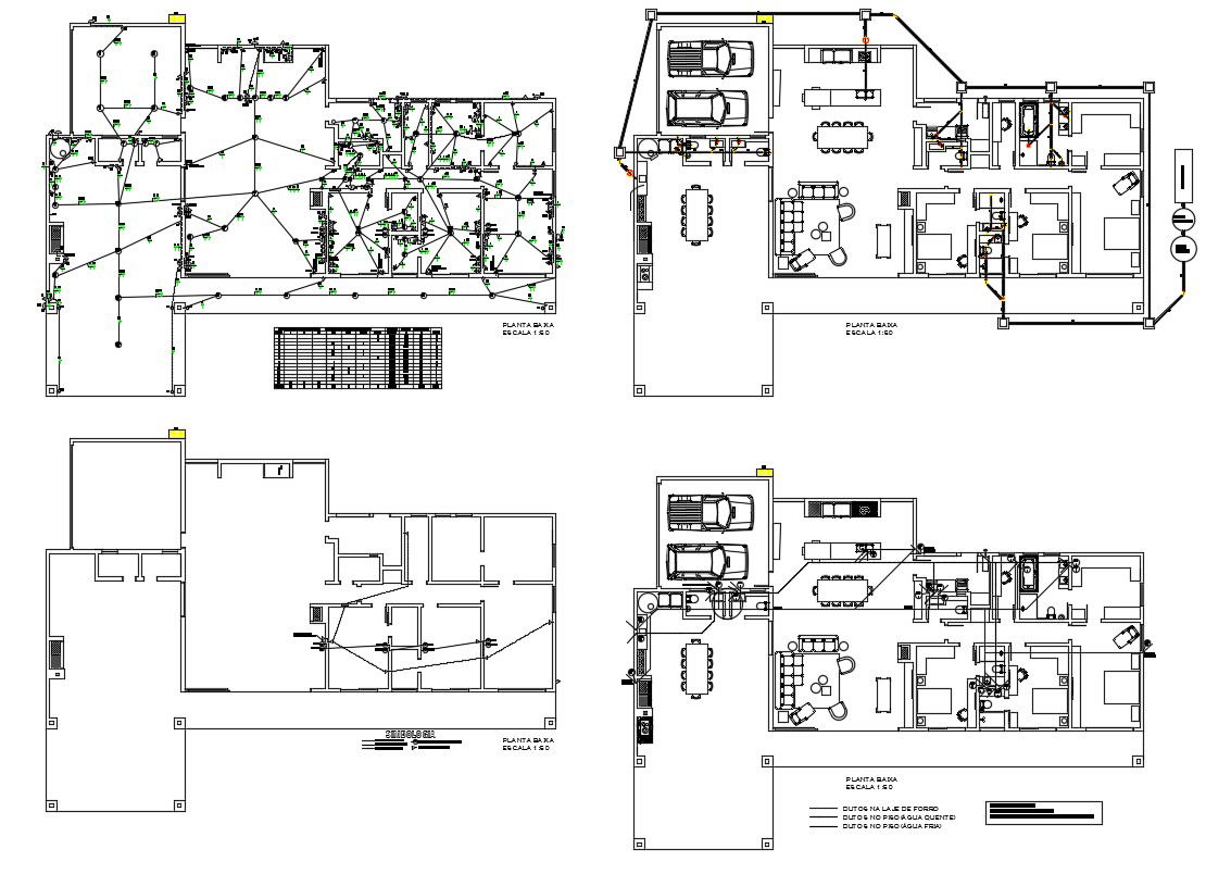
2d CAD drawing details of residence G+1 Bungalow that shows furniture arrangement details along with parking space area details, specification, electrical wiring installation, room details, and various other blocks details download AutoCAD file for the detailed design of bungalow.
File Type:
DWG
File Size:
425 KB
Category::
Interior Design
Sub Category::
Bungalows Exterior And Interior Design
type:
Gold

Uploaded by:
akansha
ghatge
