Three Floor Plans Of Commercial Building With Working Drawing AutoCAD File
Description
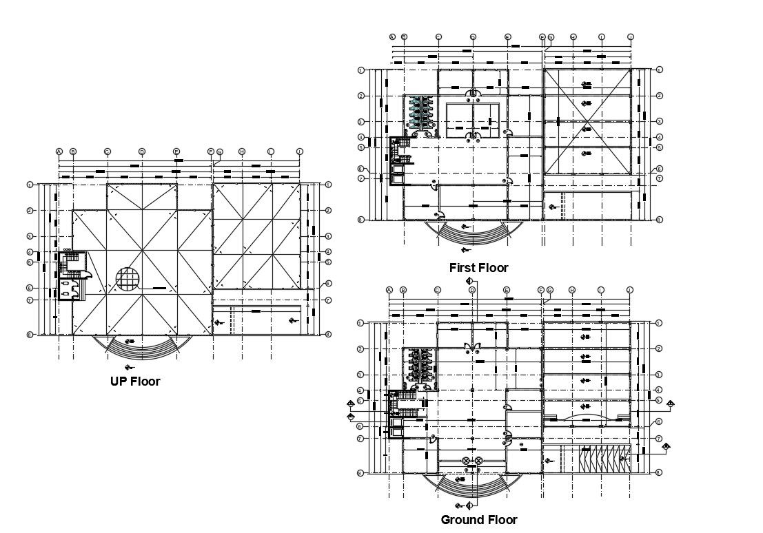
Three Floor Plans Of Commercial Building With Working Drawing AutoCAD File; this is the commercial building floor plan includes centerline, working drawing, floor levels, ramp details, toilets for his and her, stair and lift details, and much more other details related to a commercial building, its a CAD file format.
Uploaded by:
Rashmi
Solanki
