Commercial Office Building Design 2d Furniture Layout AutoCAD Drawing Plan
Description
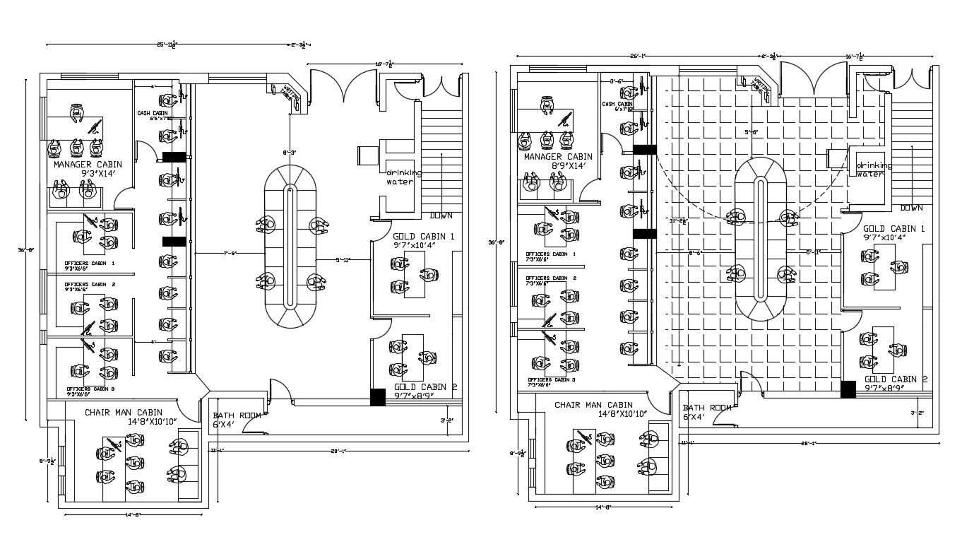
Commercial Building design layout furniture plan that shows office working station area, office cabins rooms, room dimension, pantry area, washroom, staircase, building floor level, and various other details of office building amenities download AutoCAD drawing Plan.
File Type:
DWG
File Size:
215 KB
Category::
Interior Design
Sub Category::
Modern Office Interior Design
type:
Gold

Uploaded by:
akansha
ghatge

