One Bhk Residence Bungalow Design Ground Floor Furnished Plan CAD File
Description
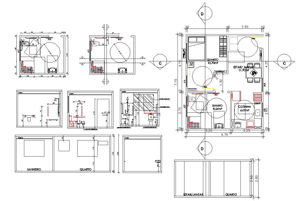
CAD drawing details of residential bungalow design layout plan that shows bungalow furniture layout plan details along with bungalow room dimension details, floor level, bathroom design plan, section line, dimension working set, bathroom sectional view, and various other units details download Architecture plan CAD file.
File Type:
DWG
File Size:
160 KB
Category::
Interior Design
Sub Category::
Bungalows Exterior And Interior Design
type:
Gold

Uploaded by:
akansha
ghatge
