Guard Room Plan and Elevation Design With Boundary Wall Structural View AutoCAD File
Description
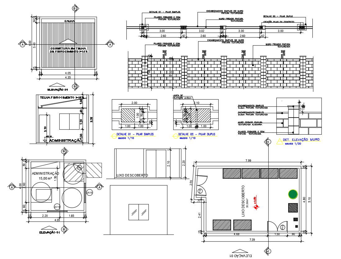
CAD drawing details of guardhouse layout plan details along with roof shade plan, section line, dimension working set, boundary compound wall plan and elevation design, and various other structural blocks details download AutoCAD file for detailed working design drawing.

Uploaded by:
akansha
ghatge

