Residential Apartment Design Layout Plan and Sectional View AutoCAD Drawing Download
Description
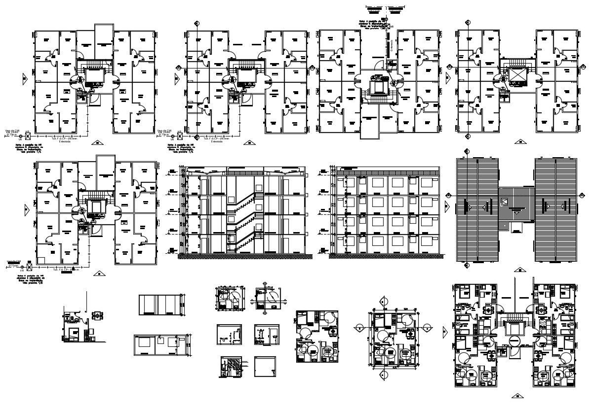
2d CAD drawing details of residential living apartment layout plan that shows the working plan and furniture layout plan details of the apartment along with dimension working set, section line, apartment floor level, apartment section design, apartment services design of staircase elevators, and various other units details download AutoCAD Drawing for detailed working design.

Uploaded by:
akansha
ghatge

