Office Furniture design
Description
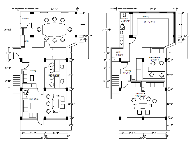
This office furniture Design in all detail like meeting table, confrance area, interior design & Staff chamber, waiting area, etc detail.
File Type:
DWG
File Size:
77 KB
Category::
Interior Design
Sub Category::
Corporate Office Interior
type:
Gold

Uploaded by:
Jafania
Waxy

