LOGIN
HOME
CATEGORIES
UPLOAD FILE
PRICING
HOUSE PLAN
ABOUT US
CONTACT US
Vertical Multistage Pump Detail
Home
Categories
Dwg Cad Blocks
Cad Hardware
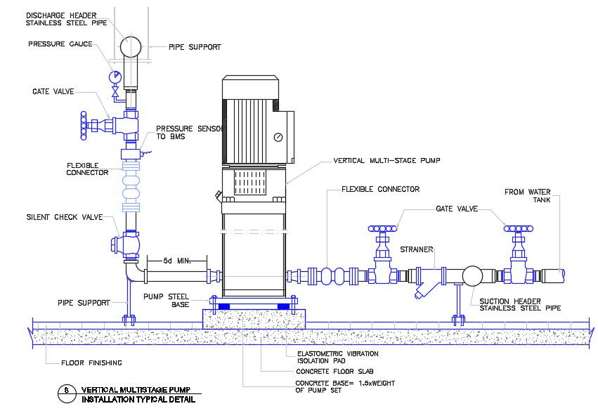
Vertical Multistage Pump Detail
Uploaded by:
Sutan
Kayo
View Profile
View Profile
Description
Detailed drawing of vertical pump used in fire suppression systems in buildings, in Cad drawing format
File Type:
Autocad
File Size:
48 KB
Category::
Dwg Cad Blocks
Sub Category::
Cad Hardware
type:
Gold
Uploaded by:
Sutan
Kayo
View Profile
Download
Add to libary
find Latest
Related
Files