LOGIN
HOME
CATEGORIES
UPLOAD FILE
PRICING
HOUSE PLAN
ABOUT US
CONTACT US
House Design
Home
Categories
Architecture
House Plan
House Design
Uploaded by:
Jafania
Waxy
View Profile
View Profile
Description
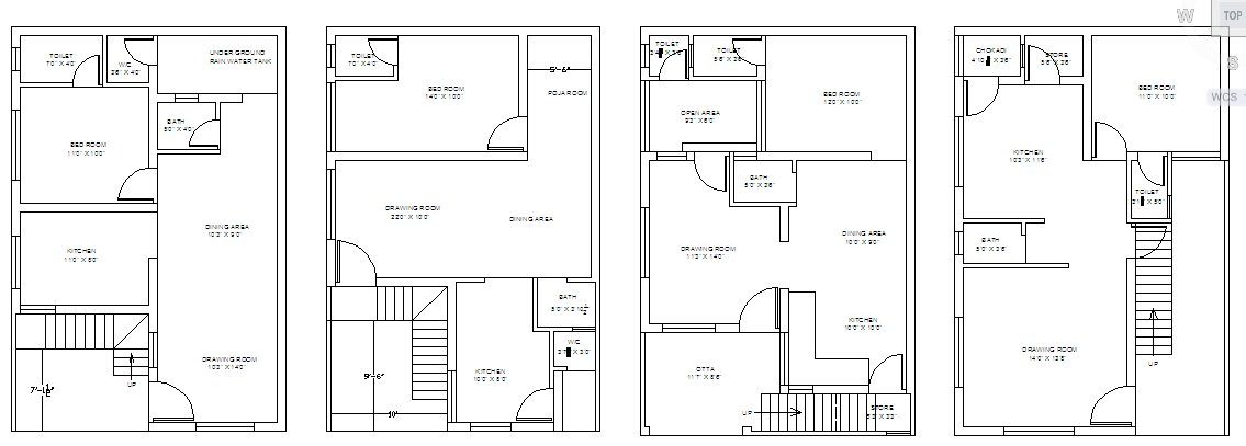
Different type of house option in this drawing & House design include of Drawing room, living room, kitchen, dining room, bed room , stair etc.
File Type:
DWG
File Size:
30 KB
Category::
Architecture
Sub Category::
House Plan
type:
Gold
Uploaded by:
Jafania
Waxy
View Profile
Download
Add to libary
find Latest
Related
Files