Residence Semi-Furnished Bungalow Design Architecture Plan
Description
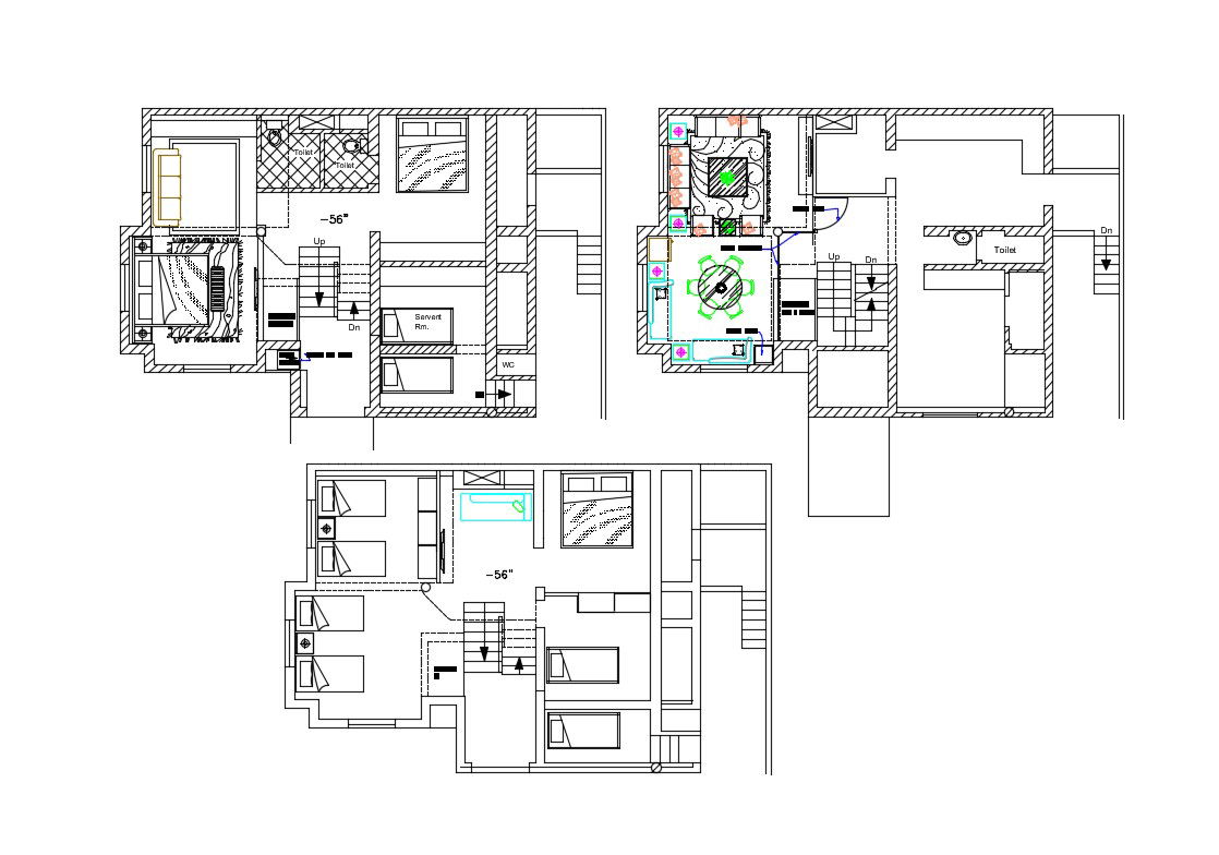
CAD drawing details of multi-story residence bungalow design floor plan that shows furniture arrangement details in rooms along with bungalow floor level, staircase, and various other bungalow amenities details download Architecture AutoCAD plan for detailed working drawings.

Uploaded by:
akansha
ghatge

