G+1 Residence Bungalow Design With Roof Terrace Plan
Description
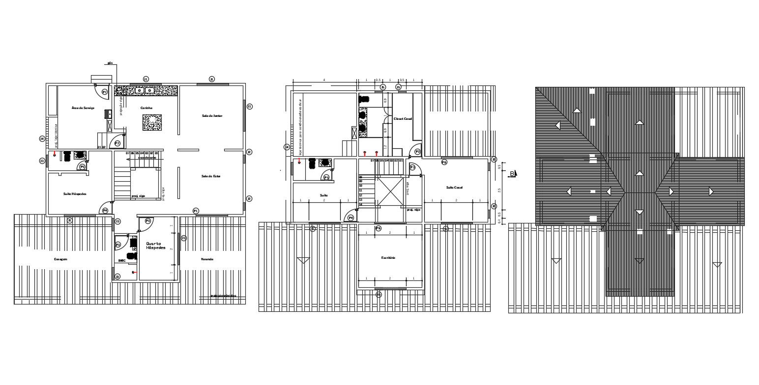
CAD drawing details of residence bungalow floor plan design that shows bungalow room design, room interior dimensions, open terrace space, roof layout plan design, staircase design, and bungalow various other facilities details download Architecture CAD plan.

Uploaded by:
akansha
ghatge

