Hospital Building Design Ceiling Layout Architecture Plan
Description
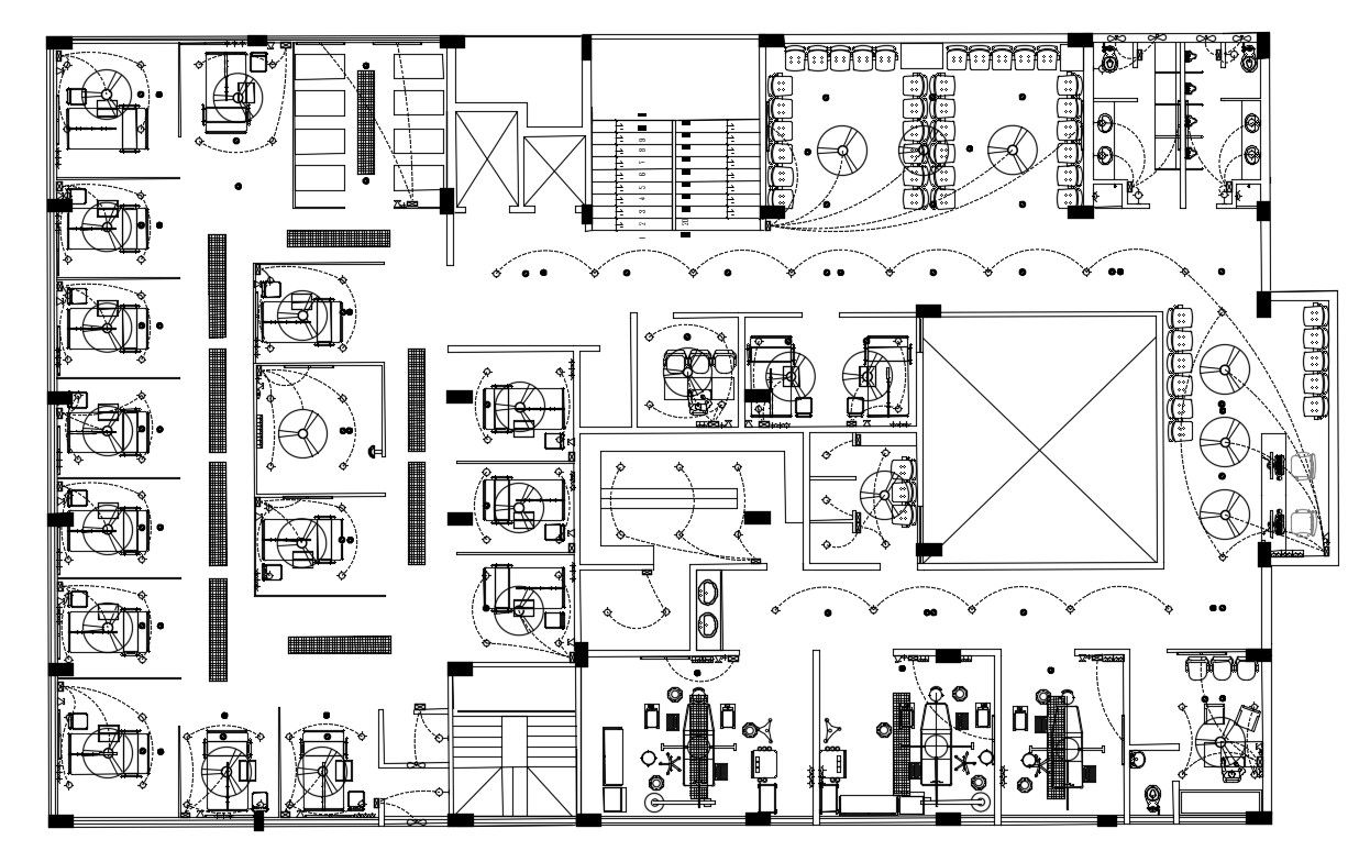
2d CAD drawing details of hospital building design ceiling plan that shows ceiling design architecture plan along with dimension working set, false ceiling units, electrical wiring, fan units, and various other blocks details download CAD plan for detailed working drawing.

Uploaded by:
akansha
ghatge

