Typical Furnished 3 BHK Apartment Design Layout Architecture Plan
Description
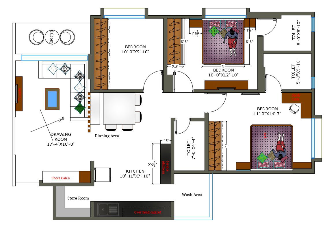
Residence 3 BHK apartment design architecture plan that shows bungalow floor plan design, room layout design, room interior dimension, balcony area, and apartment various other amenities and accommodations details download AutoCAD drawing plan.

Uploaded by:
akansha
ghatge

