Plot Area Design Contour Plan and Column Design Drawing
Description
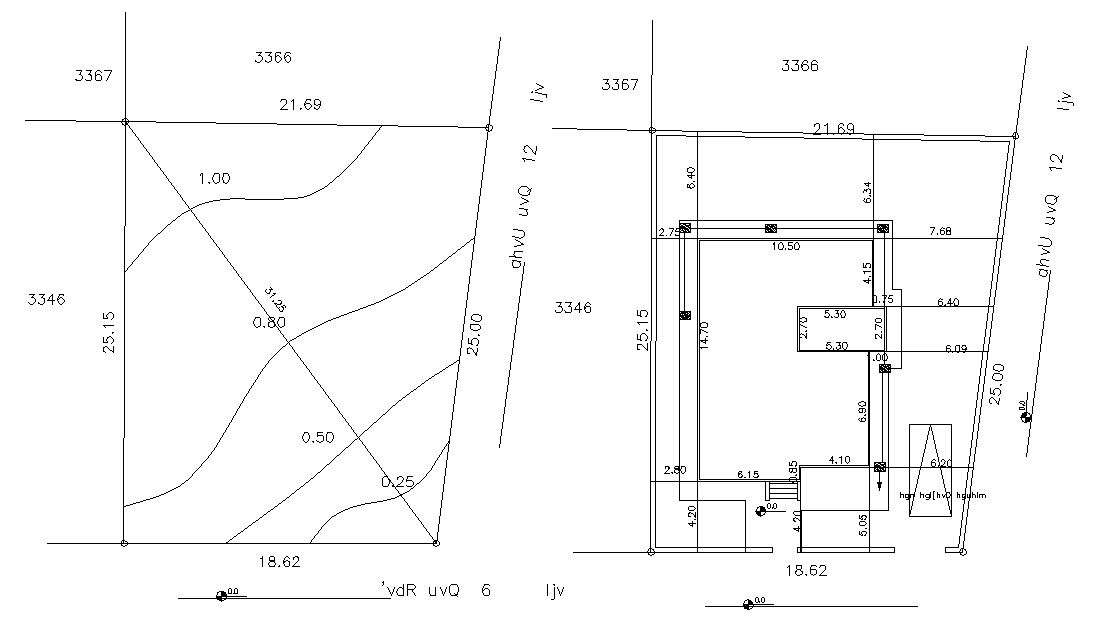
2d CAD drawing details of plot area contour survey line and chainage details along with column arrangement plans, dimension working set, and various other blocks details download AutoCAD file for free.

Uploaded by:
akansha
ghatge

