LOGIN
HOME
CATEGORIES
UPLOAD FILE
PRICING
HOUSE PLAN
ABOUT US
CONTACT US
Restaurant detail Lay-out
Home
Categories
Architecture
Hotels and Restaurants
Restaurant detail Lay-out
Uploaded by:
Fernando
Zapata
View Profile
View Profile
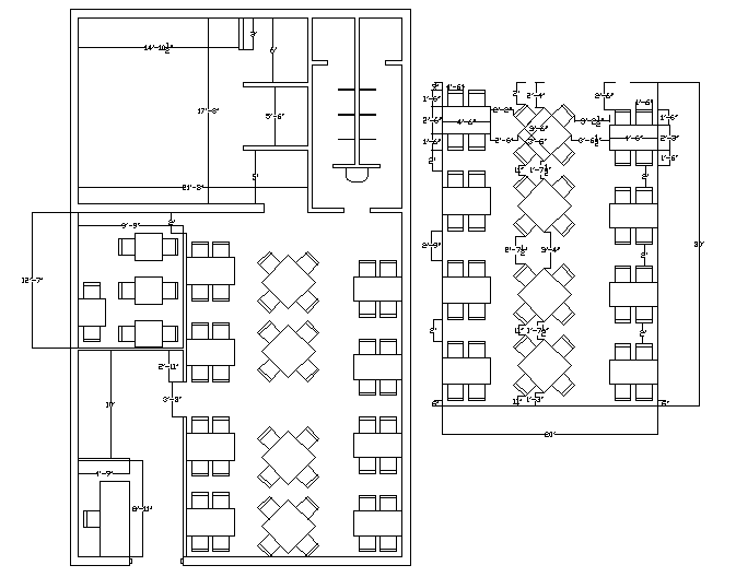
Description
restaurant lay-out detail with dimension & all dining table set this lay-out & kitchen space etc detail.
File Type:
DWG
File Size:
52 KB
Category::
Architecture
Sub Category::
Hotels and Restaurants
type:
Gold
Uploaded by:
Fernando
Zapata
View Profile
Download
Add to libary
find Latest
Related
Files