Pile Foundation Footing Design 2d RCC Structure Drawing
Description
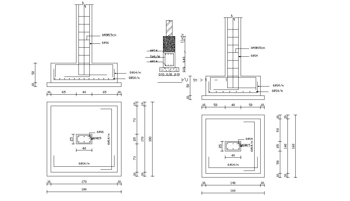
2d CAD drawing details of RCC pile foundation plan and Sectional design that shows reinforcement details in tension and compression zone along with main and distribution hook up and bent up bars details. Bar dimensions details and various other structural blocks details also included in the AutoCAD file.

Uploaded by:
akansha
ghatge

