RCC Footing Structural Design Layout AutoCAD File
Description
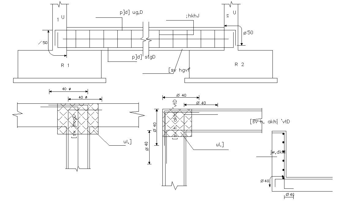
CAD drawing details of reinforced combined footing structure design that shows foundation structure reinforcement works details along with bar dimension details, main distribution hook up and bent up bars details, download AutoCAD file for detailed RCC work design.
File Type:
DWG
File Size:
810 KB
Category::
Construction
Sub Category::
Reinforced Cement Concrete Details
type:
Gold

Uploaded by:
akansha
ghatge

