Pile Foundation Design 2d Structural CAD Plan Download
Description
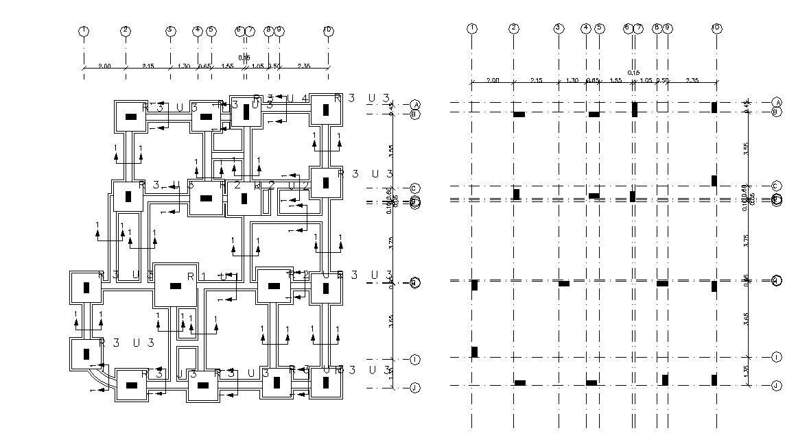
2d CAD drawing details of the foundation footing design layout plan that shows column arrangement grid plan details along with center lines details, dimension working set, section line, and various other structural blocks details download AutoCAD file for detailed design.

Uploaded by:
akansha
ghatge

