Residence 2 BHK Furnished Bungalow Floor Plan Drawing
Description
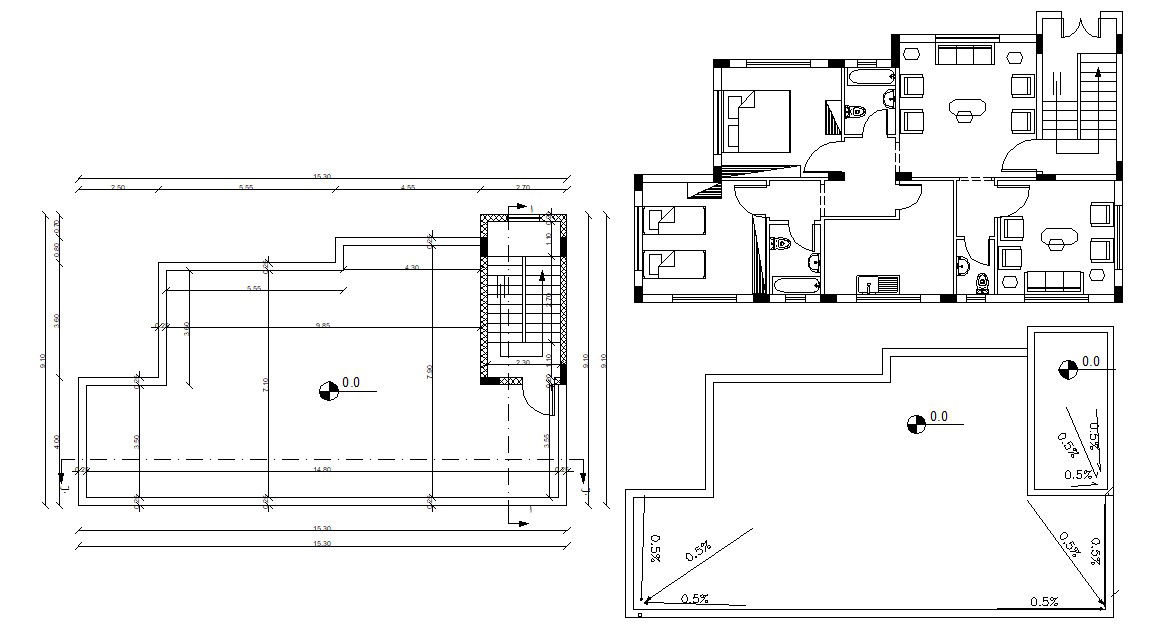
Residence Living apartment design architecture plan that shows bungalow furniture arrangement details along with bungalow floor layout plan, dimension working set, floor level, room design, staircase, and various other units details download AutoCAD file.
File Type:
DWG
File Size:
791 KB
Category::
Interior Design
Sub Category::
Bungalows Exterior And Interior Design
type:
Gold

Uploaded by:
akansha
ghatge

