RCC Slab and Column Beam Structure Design CAD File
Description
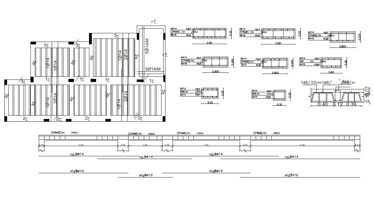
Slab curtailment design that shows column and beam structure design that shows reinforcement details in structural blocks along with bars dimension along with a column spacing, dimension working set, download AutoCAD file.
File Type:
DWG
File Size:
742 KB
Category::
Construction
Sub Category::
Reinforced Cement Concrete Details
type:
Gold

Uploaded by:
akansha
ghatge

