Residence Bungalow Design Electrical Working Plan CAD Drawing
Description
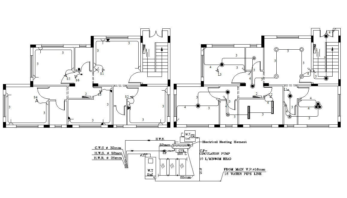
2d CAD drawing details of residence bungalow working layout plan along with ceiling electrical working plan details, electrical machine units, bungalow floor plan design, and bungalow various other units details download AutoCAD file.

Uploaded by:
akansha
ghatge

