Building Design Working Layout AutoCAD Drawing Plan
Description
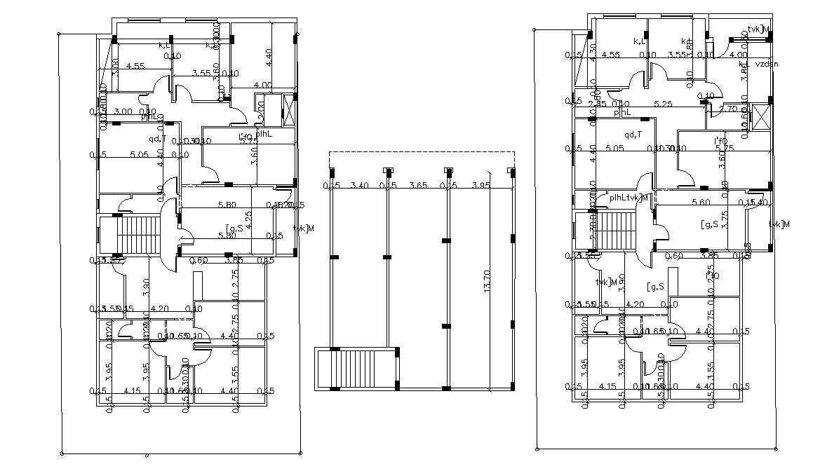
2d CAD Drawing details of building construction layout plan that shows building rooms design, dimension working, staircase, building column arrangement layout, and various other units details download AutoCAD file.

Uploaded by:
akansha
ghatge

