Residence Apartment Layout Architecture Plan Download
Description
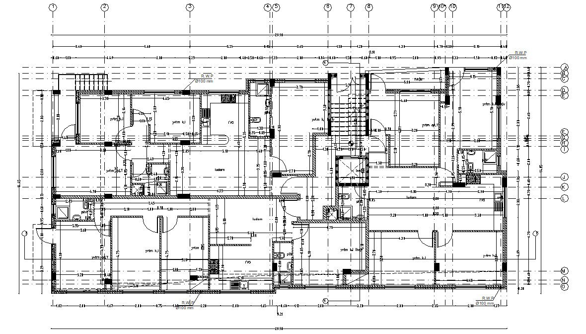
Working layout architecture plan that shows apartment floor level details, dimension working set, center lines, staircase, room design of apartment, apartment length width, and residence apartment various other units details download AutoCAD file.

Uploaded by:
akansha
ghatge

