Three bedroom house first floor layout plan cad drawing
Description
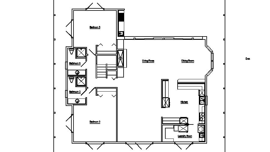
Three bedroom house first floor layout plan cad drawing that includes 2D CAD file of main entry house door with a drawing room and living room with a family hall, kitchen and dining area included. Indoor staircases and laundry area and balcony information provided. Bedroom or master bedrooms, toilets and bathroom with furniture details and much more of house Architecture project.
Uploaded by:
K.H.J
Jani

