Bungalow Floor Plan With Working Drawing AutoCAD File
Description
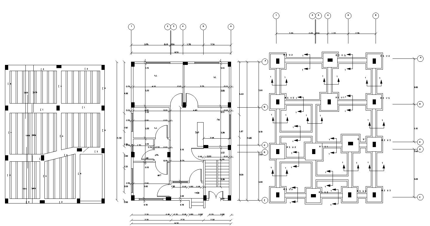
this is the planning of a huge residential bungalow layout plan with working drawing dimension, column foundation, centerline marking and dimension, excavation line out plan in it, column layout plan in house design and column beam marking in slab.
Uploaded by:
Rashmi
Solanki
